Продажа объекта коммерческой недвижимости (Помещение свободного назначения) в поселке Санаторий Костромской, Кострома

3 500 000
Вчера, 15:08
  • Вчера, 15:08
1 / 15
Адрес городской округ Кострома, Кострома, Заволжский район, пос. Санаторий Костромской, лит е
Тип Свободного назначения
Использование Помещение свободного назначения

Выгодное месторасположение в живописном месте в черте города рядом с территорией бывшего Костромского санатория.   
 

Рядом находятся медцентр "МЕДЕКС", новый детский сад и большой спальный район, до ТРЦ "РИО" 2 минуты езды.

 

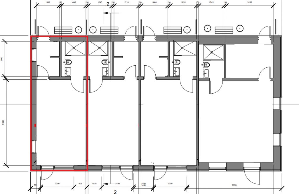
В продажу предлагается нежилое помещение 31,2 кв.м). Свободного назначения с современными тёплыми панорамными окнами "Rehau", с отдельными выходами на улицу и террасу. 

Выполнен технологичный энергоэффективный фундамент, комбинированная система отопления тёплыми полами и радиаторами. Стены из газосиликата с утеплением, кровля - графитовый фальц. Полноценная качественная разводка электрики на большое количество точек, перегородки и потолки - влагостойкий двойной гипсокартон, блоки оштукатурены под финишную отделку.
Большая зона парковки, тихое спокойное место вдали от оживленных дорог и в то же время удачное расположение для транспортной доступности - в пешей доступности расположены остановки общественного транспорта. На территории санатория пруд.

Земельный участок находится в аренде у города за невысокую плату.
Проект в данный момент находится на завершающей стадии строительства. Помещение уже готово под возможные ваши цели - бьюти-салон, офис, медицинский кабинет и пр.

ЗВОНИТЕ ПРЯМО СЕЙЧАС, ЧТОБЫ ДОГОВОРИТЬСЯ О ПРОСМОТРЕ И УТОЧНИТЬ ВСЕ ДЕТАЛИ!

Барашков Сергей Алексеевич
an-senator@mail.ru
Агентство недвижимости: AН Сенатор
г.Кострома, Октябрьская пл., д.1., 3 этаж
an-senator@mail.ru
Все предложения этого агентства