Продажа 1-комнатной квартиры 40 м2, улица Войкова 22, Кострома

5 900 000
147 500 ₽ / кв.м.
07 октября 2025
1 / 23
Адрес городской округ Кострома, Кострома, Центральный район, ул. Войкова, 22
Количество комнат 1 – комнатная
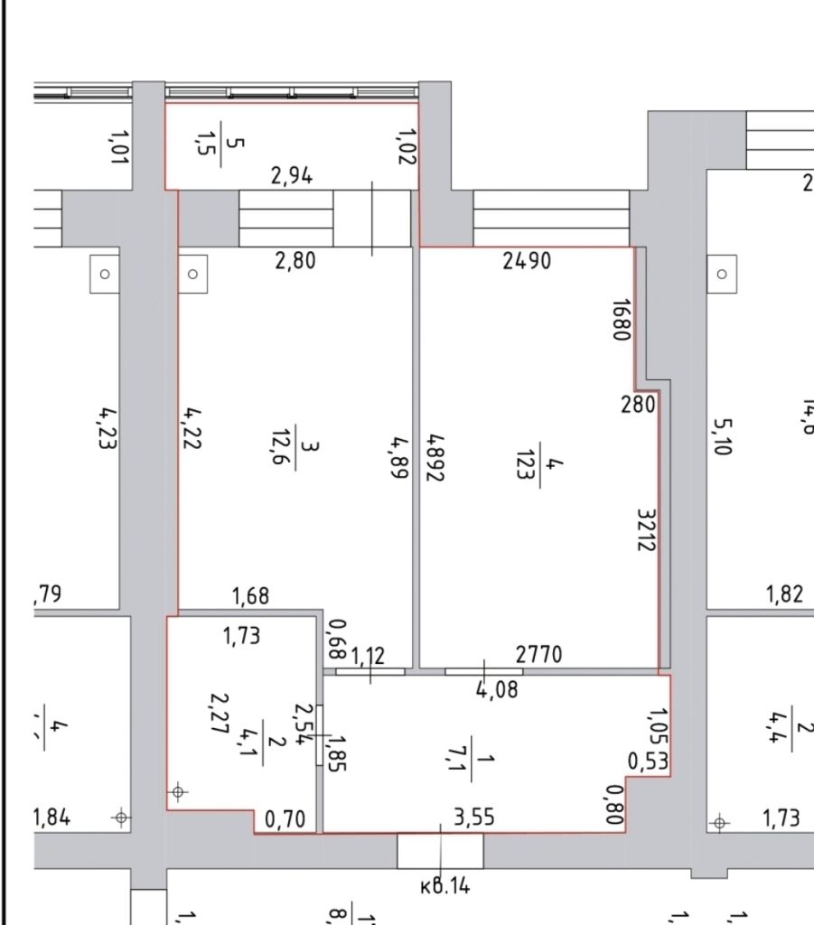
Площадь (кв.м.) Общая: 40 Жилая: 13 Кухня: 13 40 / 13 / 13
Этаж 2 из 5
Дом Кирпичный
Санузел совмещенный
Состояние Черновая отделка
Отопление АОГВ
Балкон / лоджия 1 лоджия
Газ есть
Грузовой лифт есть

Комиссию с покупателя не берем!

Продам квартиру с автономным отоплением (АОГВ) в центре города!

Квартира в черновой отделке, установлен двухконтурный котел "Baхi".

Удобная планировка квартиры, из кухни выход на лоджию с панорамным остеклением, большой совмещенный санузел, в прихожей можно сделать гардеробную.

В доме установлен грузопассажирский лифт.

Территория вокруг дома огорожена, установлены автоматические ворота, 2 въезда на территорию дома, большая парковка, детская и спортивная площадки, по периметру дома установлены камеры видеонаблюдения.

Район с развитой инфраструктурой, все в шаговой доступности, школы, садики, магазины, остановки общественного транспорта.

Покупатель абсолютно бесплатно получает:

- проверку документов;

- помощь в вопросах, связанных с опекой, нотариусом, в ипотеке;

- проведение сделки;

- гарантию безопасности сделки;

- присутствие нашего сотрудника на передаче объекта недвижимости.

Агентство "Усадьба" поможет Вам с одобрением ипотеки от ведущих банков, на самых выгодных условиях.

Деятельность нашего агентства застрахована. Полное сопровождение сделки, юридическая чистота и безопасность.

19 лет на рынке недвижимости! Положительные отзывы о нашей работе!

Звоните, буду рада помочь приобрести квартиру!

МЫ ДАРИМ ПОДАРКИ для дома и ремонта!

Сертификаты:

✓ 50 000 рублей, в качестве 10 % скидки на ремонтные работы от компании "Дом мечты";

✓ 100 000 руб. на мебель магазин МебельНик, в качестве 10 % скидки;

✓ 50 000 руб. на весь ассортимент салон штор "Уютный Дом", в качестве 10 % скидки;

✓ 30 000 руб. на покупки в Ноff, в качестве 15 % скидки;

✓10 000 руб. на приобретение товаров в печном магазине "Тепло и Уют";

Скидочные карты на строительные материалы и мебель:

- 50% скидку на каждый второй натяжной потолок, фирмы "Феникс";

- от 5 до 30% скидку на Дизайн-проект и материалы в интерьерном салоне "Пятый элемент";

- до 7% скидку на плитку КЕRАМА МАRАZZI;

- 10% скидку на септики "ЭкоСептор";

- 10% скидку при заказе кухни, гардеробной или шкафа-купе в компании VIОRЕ

- 10% скидку на межкомнатные и входные двери, обои, напольные покрытия в компании "Декор Престиж".

И самое важное в конце ремонта:

✓ купон на скидку 15% на услуги психолога, гештальт-терапевта, ЕМDR терапевта Елены Завацкой;

✓ваучер на отдых в Турции

✓сертификат со скидкой на услуги бьюти-магазина "Эстетика"

Агентство "Усадьба" поможет Вам с одобрением ипотеки от ведущих банков, на самых выгодных условиях.

Деятельность нашего агентства застрахована. Полное сопровождение сделки, юридическая чистота и безопасность.

19 лет на рынке недвижимости! Только положительные отзывы о нашей работе!

Звоните!

Агентство недвижимости: ООО "АН "Усадьба"
г.Кострома, ул.Горная, 8б
usadba-k@yandex.ru
Все предложения этого агентства